南海鼓型实体橡胶护舷
南海鼓型实体橡胶护舷的结构经过不断改进变得更加的简单、高性能、坚固。安装尺寸保持不变,因此它们可以与许多旧的鼓型护舷相互替换。
鼓型实体橡胶护舷是一种成熟的橡胶护舷类型,具有空心圆柱体和完全嵌入橡胶的安装法兰。 它被设计为在轴向上偏转高达 52.5%(设计偏转)。 鼓型实体橡胶护舷有着很长的历史记录并且仍然很受欢迎,因为它们的操作简单、高性能和强度。 南海鼓型实体橡胶护舷有多种标准尺寸,可与许多较旧的船用护舷互换。高度介于 400 和 3,000 毫米之间。
泰国海上靠泊项目,南海参与设计。
使用了南海的大型超级鼓形橡胶护舷、V型橡胶护舷和系船柱。
项目实施后,合作公司现场进行了产品应用测试,得到了合作公司的积极反馈。


鼓型实体橡胶护舷应用
-
- 1150mm 超级鼓形橡胶护舷
- 2000mm 超级鼓形橡胶护舷
- 400*2000mm V型橡胶护舷
- 100吨系船柱
南海为完成该项目提供所有产品解决方案。
鼓型实体橡胶护舷特点



- 易于组装和安装。
- 高能量吸收,低反作用力。
- 前面板可降低对船舶的表面压力,表面压力可控制在200KN/㎡以下,适合大型船舶靠泊。
- UHMW-PE垫与前面板固定,以降低船舶与护舷系统之间的摩擦系数,通过降低剪切力可有效延长护舷系统的使用寿命。
- 鼓形实体橡胶护舷具有出色的多方向角度性能。
- 经济高效:占地面积大,可在前面板上实现良好的负载分布,从而使面板结构更轻。
鼓型实体橡胶护舷应用
集装箱和散货码头|石油、天然气和液化天然气终端|杂货码头|邮轮码头|渡轮和滚装码头|海上平台|多用户泊位|海军




我们长期储备常规型号
鼓型实体护舷库存,想要快速发货?
联系我们!
0531-88723323
15288858360
nanhai@airbag.cc
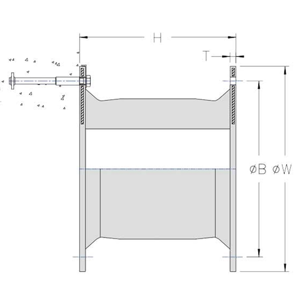
鼓型实体橡胶护舷尺寸结构

| spec. 规格 |
H | Φ1 | Φ2 | n | Φd | MD | L | Ref.Weight 参考重量(kg) |
| 500H | 500 | 550 | 650 | 4 | 32 | 24 | 300 | 111 |
| 630H | 630 | 700 | 840 | 4 | 39 | 30 | 330 | 230 |
| 800H | 800 | 900 | 1050 | 6 | 40 | 32 | 360 | 412 |
| 1000H | 1000 | 1100 | 1300 | 6 | 47 | 39 | 430 | 825 |
| 1150H | 1150 | 1300 | 1500 | 6 | 50 | 42 | 500 | 1210 |
| 1250H | 1250 | 1450 | 1650 | 6 | 53 | 45 | 500 | 1500 |
| 1450H | 1450 | 1650 | 1850 | 6 | 61 | 52 | 570 | 2310 |
| 1600H | 1600 | 1800 | 2000 | 8 | 61 | 52 | 570 | 3030 |
| 1700H | 1700 | 1900 | 2100 | 8 | 66 | 56 | 620 | 3700 |
| 2000H | 2000 | 2000 | 2200 | 8 | 74 | 64 | 700 | 5260 |
| 2250H | 2250 | 2300 | 2550 | 10 | 74 | 64 | 700 | 7500 |
| 2500H | 2500 | 2700 | 2950 | 10 | 74 | 64 | 700 | 10750 |
| 3000H | 3000 | 3150 | 3350 | 12 | 90 | 76 | 800 | 18500 |
| (Unit: mm ) | ||||||||
![]() |
|||
|
零件名称 |
应用 |
材料 |
|
|
— 护舷 |
吸收船舶靠泊能量,保护码头和船舶。 |
橡胶:Q235 |
|
|
— 贴面板 |
降低表面压力,承受护舷产生的反作用力,增加接触面积。 |
Q235 彩绘 Q235热镀锌 |
|
|
— 面垫 |
降低摩擦系数以保护船体。 |
超高分子量聚乙烯 |
|
|
— 预内置集 |
预装螺栓和螺母 |
将护舷固定到底座上。 |
不锈钢(或 Q235) |
|
预置 U 形环 |
连接链子。 |
Q235 彩绘, Q235热镀锌 |
|
|
— 连杆螺栓,螺母 |
连接护舷和贴面板等套件。 |
不锈钢或热镀锌 |
|
|
— 链条 |
配重链 |
支撑贴面板,避免下垂。 |
Q235 热镀锌或烤漆 |
|
张力链 |
限制护舷挠度,同时下部受力。 |
Q235 热镀锌或烤漆 |
|
|
剪切链 |
防止护舷剪切偏转。 |
Q235 热镀锌或烤漆 |
|
鼓型实体橡胶护舷优势和性能
| spec. 规格 |
Rated Compression Deflection 52.5% 设计压缩变形52.5% |
|||||||||
| RE | RS | RH | RO | RL | ||||||
| R | E | R | E | R | E | R | E | R | E | |
| 500H | 182 | 40.2 | 162 | 35.6 | 140 | 30.1 | 108 | 23.4 | 86.3 | 17.8 |
| 630H | 290 | 80.4 | 258 | 71.6 | 224 | 61.7 | 172 | 47.1 | 137.5 | 38.2 |
| 800H | 464 | 163 | 412 | 145.2 | 355 | 124.6 | 275 | 96.1 | 211 | 74.5 |
| 1000H | 737 | 324 | 655 | 287 | 567 | 249 | 436 | 191 | 349 | 153 |
| 1150H | 975 | 492 | 865 | 437 | 750 | 379 | 578 | 291 | 462 | 233 |
| 1250H | 1153 | 632 | 1022 | 561 | 886 | 486 | 682 | 374 | 546 | 299 |
| 1450H | 1551 | 987 | 1376 | 876 | 1193 | 760 | 918 | 585 | 735 | 468 |
| 1600H | 1888 | 1326 | 1676 | 1177 | 1453 | 1020 | 1117 | 786 | 894 | 628 |
| 1700H | 2131 | 1591 | 1892 | 1413 | 1640 | 1224 | 1262 | 941 | 1009 | 753 |
| 2000H | 2941 | 2591 | 2619 | 2300 | 2270 | 1994 | 1746 | 1534 | 1398 | 1227 |
| 2250H | 4145 | 4095 | 3679 | 3628 | 3188 | 3150 | 2454 | 2424 | 2085 | 2060 |
| 2500H | 5118 | 5618 | 4543 | 4987 | 3937 | 4322 | 3028 | 3325 | 2574 | 2826 |
| 3000H | 5687 | 7456 | 4314 | 5676 | 3677 | 4897 | ||||
| spec. 规格 |
Max Compression Deflection 55% 最大压缩变形55% |
|||||||||
| RE | RS | RH | RO | RL | ||||||
| R | E | R | E | R | E | R | E | R | E | |
| 500H | 210 | 42.7 | 187 | 37.8 | 160 | 32 | 125 | 24.9 | 99 | 18.9 |
| 630H | 309 | 85.3 | 274 | 75.5 | 237 | 66.7 | 182 | 50 | 146.5 | 40.2 |
| 800H | 493 | 172.6 | 437 | 153 | 378 | 132 | 292 | 102 | 225 | 78.4 |
| 1000H | 784 | 343 | 696 | 304 | 603 | 264 | 463 | 203 | 372 | 163 |
| 1150H | 1037 | 521 | 920 | 463 | 798 | 401 | 614 | 309 | 491 | 247 |
| 1250H | 1225 | 669 | 1087 | 594 | 942 | 516 | 725 | 396 | 581 | 316 |
| 1450H | 1649 | 1045 | 1464 | 928 | 1269 | 804 | 976 | 619 | 781 | 495 |
| 1600H | 2007 | 1405 | 1781 | 1247 | 1544 | 1080 | 1189 | 832 | 950 | 665 |
| 1700H | 2266 | 1685 | 2012 | 1495 | 1743 | 1300 | 1342 | 997 | 1073 | 798 |
| 2000H | 3136 | 2743 | 2783 | 2435 | 2413 | 2111 | 1856 | 1624 | 1485 | 1299 |
| 2250H | 4406 | 4337 | 3911 | 3848 | 3390 | 3336 | 2607 | 2566 | 2216 | 2180 |
| 2500H | 5441 | 5949 | 4829 | 5280 | 4182 | 4576 | 3220 | 3520 | 2737 | 2992 |
| 3000H | 6619 | 7521 | 5099 | 6028 | 4217 | 5193 | ||||
注
(1)其它性能规格供需双方协商;
(2) R -反力(KN),E-吸能量(KN-M) ;
(3)RE-极高反力型,RS-超高反力型,RH-高反力型,RO-标准
反力型,RL-低反力型;
4)性能公差:10%。
|
|
RE: 极高的反作用力 |
|
||||||||||||||
|
|
RS: 超高反作用力 |
|||||||||||||||
|
|
RH: 高反作用力 |
|||||||||||||||
|
|
RO: 标准反作用力 |
|||||||||||||||
|
|
RL: 低反作用力 |
|||||||||||||||
|
|
R: 反作用力 |
|||||||||||||||
|
|
E: 能量吸收 |
|||||||||||||||
|
|
额定偏转:52.5% |
|||||||||||||||
|
|
最大偏转:55% |
|||||||||||||||
|
|
|
|||||||||||||||
|
|
|
|||||||||||||||










